












Conjunto de Viviendas PRO.CRE.AR - Bicentenario Rosario
PROYECTO: 2013
SUPERFICIE CUBIERTA: 7480M2
UBICACIÓN: Granadero Baigorria, Santa fe, Argentina
PROYECTO: ARQ. ALEJANDRO BELTRAMONE, ARQ. MARIANO COSTA, ARQ GONZALO DE LA HORRA
COLABORADORES: Lisandro Martín Lopez, Paulina Valdez, Franco Massarutto, Mariana Nanni
Memoria Descriptiva
El desafío de operar en la lonja del predio del ex Tiro Federal se basó en intervenir con alta calidad ambiental y perspectiva contemporánea, respetando los principales lineamientos proyectuales enunciados en las bases del concurso; a saber:
Para obtener el cumplimiento de estos principios rectores sin alterar el plan de masas suministrado se llevaron a cabo las siguientes adaptaciones de proyecto:
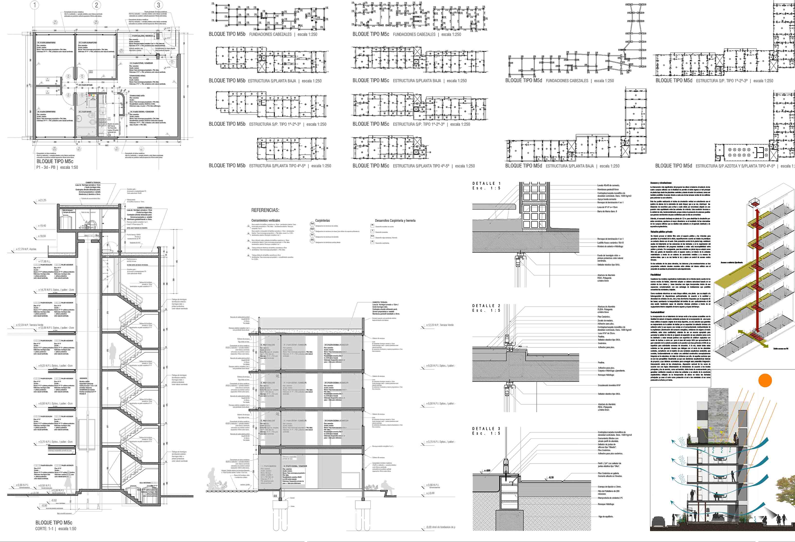
Accesos y circulaciones
La intervención más significativa del proyecto fue alterar el sistema circulatorio de los cuatro cuerpos edilicios con la finalidad de permitir el doble ingreso al hall principal de planta baja desde las plazoletas centrales y desde el sector de cocheras; como así también posibilitar el acceso directo a cada una de las terrazas verdes de los edificios para potenciar su uso colectivo.
Esto fue posible reubicando el núcleo de circulación vertical en coincidencia con el quiebre de alturas de la volumetría de cada bloque; que a su vez, disminuyó las distancias de recorridos para arribar a cada célula por encontrase alojado en una posición más equidistante entre las unidades de vivienda. Esta condición favorece a la calidad de vida, fundamentalmente porque reduce la presencia de extensos pasillos que generan servidumbre de paso conflictivas para la vida en comunidad.
Además, el necesario desfasaje en planta de 1,5 m. para efectivizar la circulación por estos corredores, aportaron al mayor dinamismo en el modelado de las volumetrías de los cuerpos edilicios que se detallan más adelante en el apartado destinado a la expresión arquitectónica.
Privacidad
Se intentó proveer el debido filtro entre el espacio público y las viviendas para garantizar la privacidad de la célula, específicamente cuando se trataba de prototipos en contacto directo con el suelo. Este pretendido control de la planta baja, estableció pautas de tratamiento en las soluciones de las fachadas y en la organización del esquema distributivo del programa tendiente a evitar esta incompatibilidad entre público y privado. Por consiguiente, para las unidades en planta baja se adoptó como filtro una galería de transición entre el espacio verde y el interior de la unidades materializado a través de un sistema de cerramiento metálico a la manera de quiebra-vistas, que a su vez tamiza la luz y ejerce un control de acceso contra intrusos.
En las unidades de los pisos elevados, los balcones y los aventanamientos se han proyectados evitando visuales cruzadas entre células del mismo edificio con el propósito de acentuar la privacidad de cada departamento.
Flexibilidad
Cuestionar los modelos organizativos tradicionales de la vivienda dando cuenta de los nuevos modos de habitar, determinó adoptar un sistema estructural basado en un módulo de tres metros y losas derechas con vigas incorporadas dentro de sus espesores; complementado con una estrategia de instalaciones que posibilita concentrar las montantes y bajadas.
Como resultante obtuvimos en cada bloque edilicio, una planta que se adaptó a la heterogeneidad de disposiciones particularizadas de acuerdo a la cantidad y diversidad de unidades de uno, dos y tres dormitorios impuestos por el programa de las bases; acentuando la inespecificidad del ámbito de uso –particularmente el del área social- haciéndolo capaz de absorber diversas prácticas a través de un equipamiento interior adaptable al mismo espacio y el paso del tiempo.
Expresión arquitectónica
Mediante un lenguaje arquitectónico contemporáneo que interpreta la diversidad como condicionante derivada de la mixtura programática propuesta por el plan de masas ideado por el programa Pro.Cre.Ar para el sector 2 del predio de Rosario; se priorizó que el diseño de las envolventes arquitectónicas se correspondieran con el desarrollo y las presiones internas de las plantas. El modelado de las elevaciones y volumetrías incluyeron también las condicionantes urbanas más relevantes, como ser que las unidades de viviendas que ocupaban las cabeceras de cada edificio rotaran para obtener un frente vivo en cada lateral, o que los balcones de los cuerpos edilicios se ajusten a las proporciones el tamaño del departamento.
Adaptándonos a las perspectivas y requerimientos del mundo actual, hemos bregado por la presencia de un importante porcentaje de aventanamiento en las superficies exteriores mediante la incorporación de vanos amplios, con carpintería de piso a cielorraso sin desatender el ahorro de energía como se expone en el siguiente lineamiento referido a la sustentabilidad. Este tratamiento de permeabilidad visual acentuó la relación exterior- interior ponderando el espacio central abierto y colectivo propuesto por el plan de masas edificadas, en tanto para las fachadas posteriores que dan al sector de estacionamiento y patios traseros del tejido urbano lindero, predominaron las superficies opacas pero con elevados contrastes de sombras por la presencia de las circulaciones de accesos a las unidades de viviendas. En síntesis, una combinación dinámica entre la materialidad y el tratamiento de la envolvente acentuado por el diseño de la piel arquitectónica para el caso de los frentes principales y del diseño de la volumetría para las contrafachadas, con la finalidad de obtener la mayor diversidad de expresión del conjunto evitando la monotonía.
Sustentabilidad
La incorporación de un tratamiento de terraza verde a las azoteas accesibles con la finalidad de reducir el impacto ambiental producto de la incorporación de una nueva masa edilicia al espacio original de la lonja deportiva, es una solución que garantiza un mejoramiento de la calidad de habitar por su capacidad de aislación térmica a la radiación solar lo que supone una ventaja en el comportamiento medioambiental de la arquitectura (disminución del consumo energético, emisiones de oxígeno al medio ambiente, entre otras cualidades), además de ser un recurso apropiado para aumentar la calidad de vida de un espacio de expansión de uso colectivo como se le ha destinado a estas terrazas jardines con superficie de solárium equipados con sector de duchas; o como ser para el caso del cuerpo M5d que aprovechando la gran extensión de la cubierta accesible se le practicó una losa perforada al 50% de su superficie para actividades comunes de encuentro. A la vez, desde todas estas cubiertas se han generado visuales que dialogan con el verde de las plazoletas centrales, cumpliendo con el objetivo de una verdadera arquitectura sostenible, que consiste, fundamentalmente en realizar una actividad constructiva conceptualmente integrada en la naturaleza; sin dejar de olvidarnos por ello, de aquellas acciones que no son tan perceptibles visualmente ya que son decisiones arquitectónicas básicas de proyecto y que debieron acometerse para conseguir esta pretendida integración: interpretación astuta de las orientaciones, disposición racional de los vanos de acuerdo con una lógica diferenciación de dimensiones de acuerdo a los locales principales y los de servicio, como así también; doble frente de aventanamiento para garantizar ventilación cruzada en todas las unidades y un estudio de la envolvente arquitectónica reflejado en la incorporación de aleros en todos las fachadas principales ya sean al norte como protección al sol o las orientadas al sur como protección a la lluvia y al viento.
Materialidad
Racionalizar la utilización de los recursos para la ejecución del proyecto que devienen en técnicas constructivas sistematizadas y materiales de última generación y marcas reconocidas de procedencia nacional. Esta premisa general obedeció al cumplimiento de dos objetivos particularizados: el de optimizar los tiempos de ejecución de la obra y el de dinamizar la economía regional.
Para el cumplimiento del primer objetivo nos focalizamos en aquellos procesos constructivos que aseguraban la menor cantidad de rubros de la construcción mediante la incorporación de tecnologías y modos actuales de uso de materiales, como ser: sistemas de encofrados pre armados y reutilizables tipo PERI (o similar) para la estructura resistente; hormigón alveolar autonivelante para contrapisos y carpetas proyectados; elementos premoldeados de hormigón para montaje de escaleras interiores, ejecución de solados exteriores y equipamiento del espacio público; paramentos verticales en ladrillo cerámico hueco sin dinteles ni mochetas; revestimientos continuos proyectados (exteriores 4 en 1 e interiores de yeso monocapa); sistema de construcción en seco para cielorrasos de núcleos húmedos; barandas metálicas prefabricadas; cerramientos de exteriores en carpintería de aluminio con premarcos y amoblamiento de cocina industrializado mediante diseño de un único prototipo adaptable a todas las unidades de vivienda.
Para efectivizar el segundo de los objetivos propuestos se priorizo aquellos que se produzcan y comercialicen en el mercado local vinculado con el área de realización del proyecto. En todos los casos son materiales de marcas reconocidas avaladas por el INTI, los que se utilizan actualmente en forma habitual en el gremio permitiendo contar con mano de obra capacitada para ejecutar las tareas.
Al respecto, la decisión más significativa fue haber optado por ladrillos huecos cerámicos y revestimientos continuos para la envolvente arquitectónica descartando el ladrillo visto u otro material al desnudo. Inconvenientes en la fabricación y provisión de este último material para obras de escala masiva de acuerdo a experiencias locales padecidas en los últimos tiempos, sumado a la dificultad de obtener mano de obra calificada para su ejecución (máxime por tratarse no solo de construcciones bajas sino también de edificios en altura), llevaron a la elección enunciada precedentemente, convirtiéndose en una alternativa de materialidad de probados y eficaces resultados, aplicada con técnicas constructivas modernas que redundan en una expresión contemporánea.
Es necesario aclarar que más allá de la justificación de esta ejemplificación, en todos los casos se tuvo como encuadre básico y como premisas de selección de materiales, los aceptados en el anexo III del pliego de condiciones generales; y si bien los precedentes procesos y materiales son los adoptados en el proyecto, los mismos permiten adaptarse a variaciones de mercado frente a contingencias de provisión y suministro, sin alterar el resultado arquitectónico de la obra.
Estacionamiento
Para el área de estacionamiento se propuso mantener el muro existente de ladrillos vistos de 3,5 mts. de altura con contrafuertes de hormigón armado cada 5 mts. debido a su buen estado de conservación y porque, además, su condición tectónica contribuye a definir un límite que se complementa óptimamente con la franja de vegetación pensadas para ubicar delante del mismo. Esta combinación dotará de un fondo paisajístico a las cocheras que se resolvieron con una estructura metálica independiente de caños con uniones articuladas y una cubierta liviana de tejido de polietileno de alta densidad con monofilamento y tratamiento UV, de alta resistencia a los vientos y fácil reposición, que garantiza la sombra y la percepción atenuada como quinta fachada desde las plantas elevadas de los edificios, mimetizándose con la tonalidad del pavimento intertrabado destinado para el sector de las cocheras.