TXT

























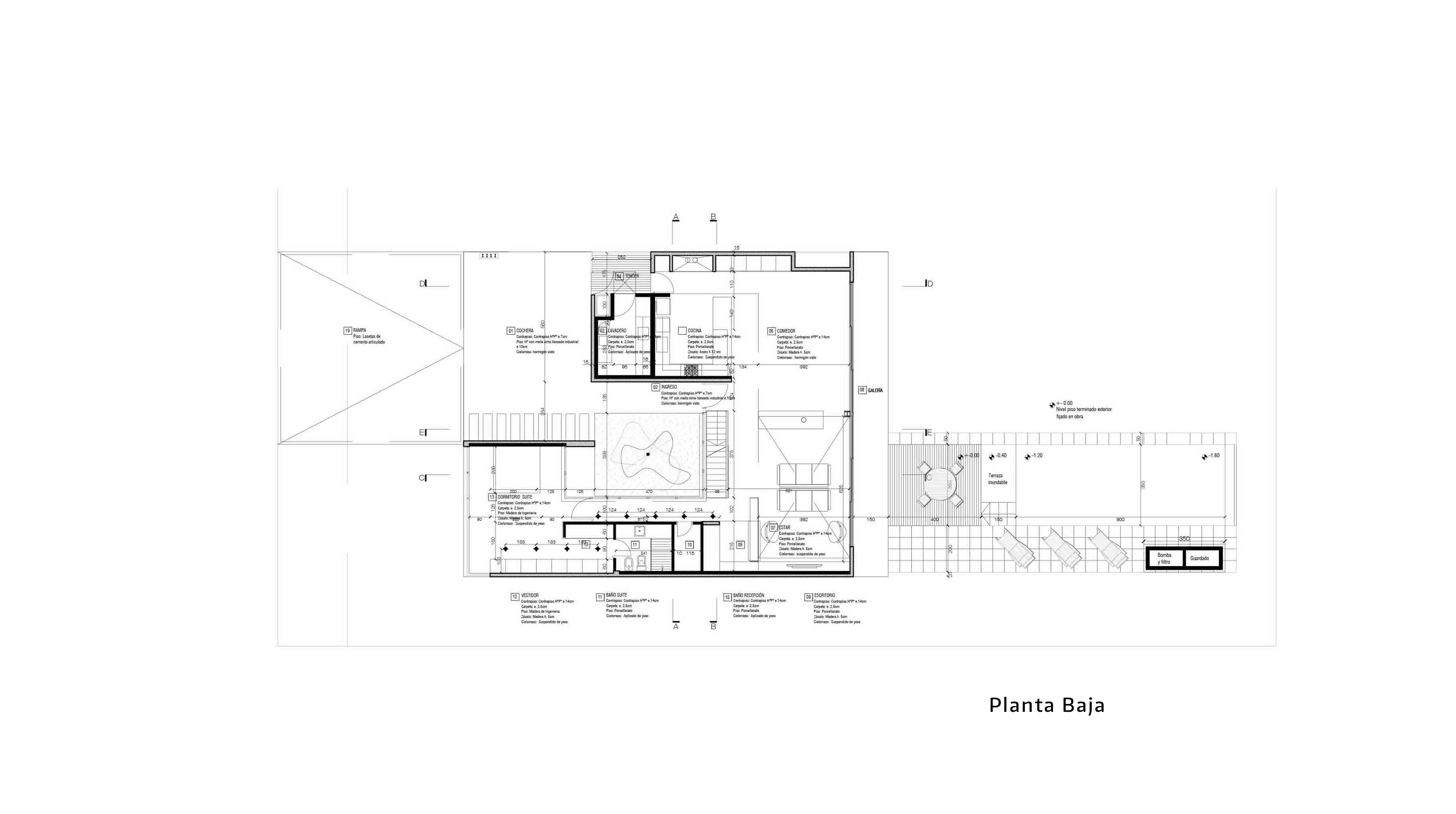
VIVIENDA UNIFAMILIAR SS12
PROYECTO: 2015
EJECUCION: 2016/2017
SUPERFICIE CUBIERTA: 290m2
UBICACIÓN: San Sebastián, Funes, Santa fe, Argentina
PROYECTO: ARQ. ALEJANDRO BELTRAMONE
COLABORADORES: Juan Martin Flaherty, Lisandro Martìn Lopez, Francisco Pomar, Sofìa Simioni