













VIVIENDA UNIFAMILIAR SS389
PROYECTO: 2013
EJECUCION: 2014/2015
SUPERFICIE CUBIERTA: 224m2
UBICACIÓN: San Sebastián, Funes, Santa fe, Argentina
PROYECTO: ARQ. ALEJANDRO BELTRAMONE
COLABORADORES: Luis Etchevarne, Lisandro Lopez, Sonia Le Doze, Francisco Pomar
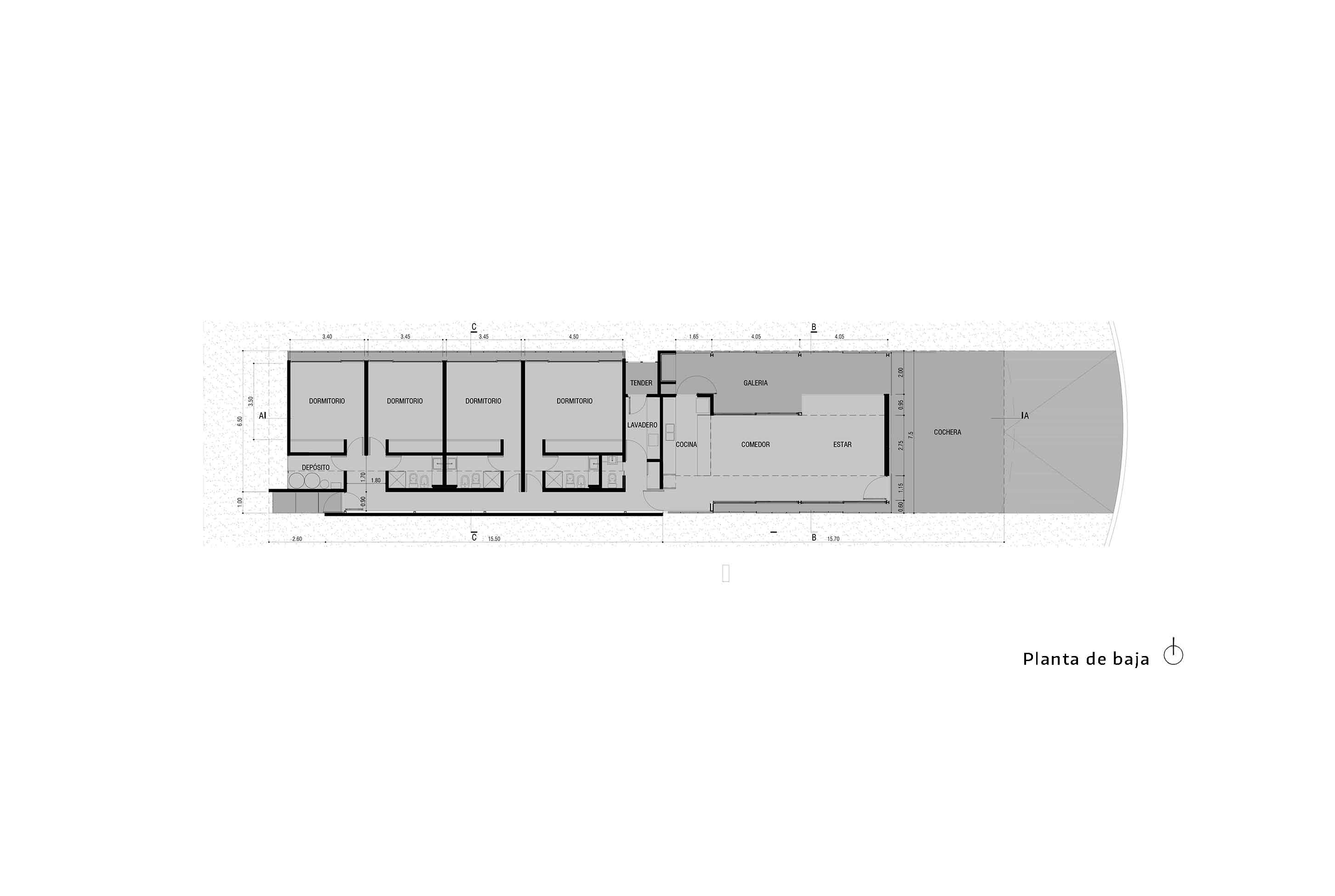
Memoria Descriptiva
Las dimensiones de una parcela en esquina ubicada en el barrio cerrado “San Sebastián” de la localidad de Funes, otorgó la superficie donde físicamente se desarrolló el proyecto, pero el verdadero alcance del terreno fue el barrio en sí mismo. Pensamos que no era necesario reforzar los límites del lote en tanto el cerco ya se encontraba levantado en todo el perímetro de la urbanización, en síntesis en “barrio cerrado- parcela abierta”.
Por consiguiente, el emplazamiento de la vivienda intentó adaptarse a la geometría del lote aprovechando los 35 metros disponibles de su frente para resolver el programa en una sola planta como lo requería el propietario. Retirada 5 metros sobre el límite norte de la parcela para asegurar el correcto asoleamiento de todo su interior y elevada 60 cm para alcanzar una cota segura con relación al nivel bajo de su terreno natural, la casa se relaciona con el parque de las áreas recreativas de uso colectivo del barrio a través de su jardín, posibilitando perspectivas profundas que superan las propias dimensiones del lote.
Como el proyecto responde a una vivienda de uso alternativo, para ser habitada los fines de semana y en el período de verano, se decidió racionalizar al máximo la superficie de los locales bajo una única cubierta que al exterior se define por la austeridad del plano horizontal pero que en su interior se moldeó de acuerdo a las necesidades del programa, variando las alturas de los espacios, regulando el ingreso de la luz y garantizando la ventilación cruzada.
Esto fue posible porque la estructura se pensó como la expresión arquitectónica del proyecto y no exclusivamente por sus condiciones resistentes para soportar. Mediante el empleo del hormigón armado y una modulación acorde para alojar la totalidad de las funciones programáticas, la casa se resuelve en dos sectores bien diferenciados: el celular correspondiente a los dormitorios; y el de planta libre del estar, comedor y galerías donde el recorrido independiente de la carpintería de cierre define las diferentes áreas de uso acentuando la continuidad espacial entre el interior y el paisaje exterior.