















CONCURSO BIBLIOTECA DEL BICENTENARIO
PROYECTO: 2010
UBICACIÓN: Rosario, Santa fe, Argentina
PROYECTO: ARQ. ALEJANDRO BELTRAMONE, ARQ. MARCELO PONZELLINI
COLABORADORES: Luis Etchevarne
Memoria descriptiva
El proyecto se pensó como respuesta a los requerimientos no sólo arquitectónicos, sino a su vez urbanísticos condicionados por la preexistencia del Centro Municipal de Distrito Rosa Ziperovich, la forestación existente, las orientaciones y la trama urbana. Con la finalidad de “hacer ciudad”, se intentó consolidar un nuevo espacio cultural, recreativo y educativo para la zona sur de Rosario en consonancia con lo expresado en las bases como objetivo del concurso: “…que trasmita un cambio conceptual en cuanto a la imagen y desarrollo de una biblioteca en el Bicentenario”.
Para ello, se proyectó una serena plaza y una placa de austera geometría, un gran contenedor con distintos filtros producto de contrastes entre opacidades y transparencias que establecen un fluido diálogo entre el exterior y el interior, convirtiendo el edificio en una usina de la cultura expuesta a la ciudad.
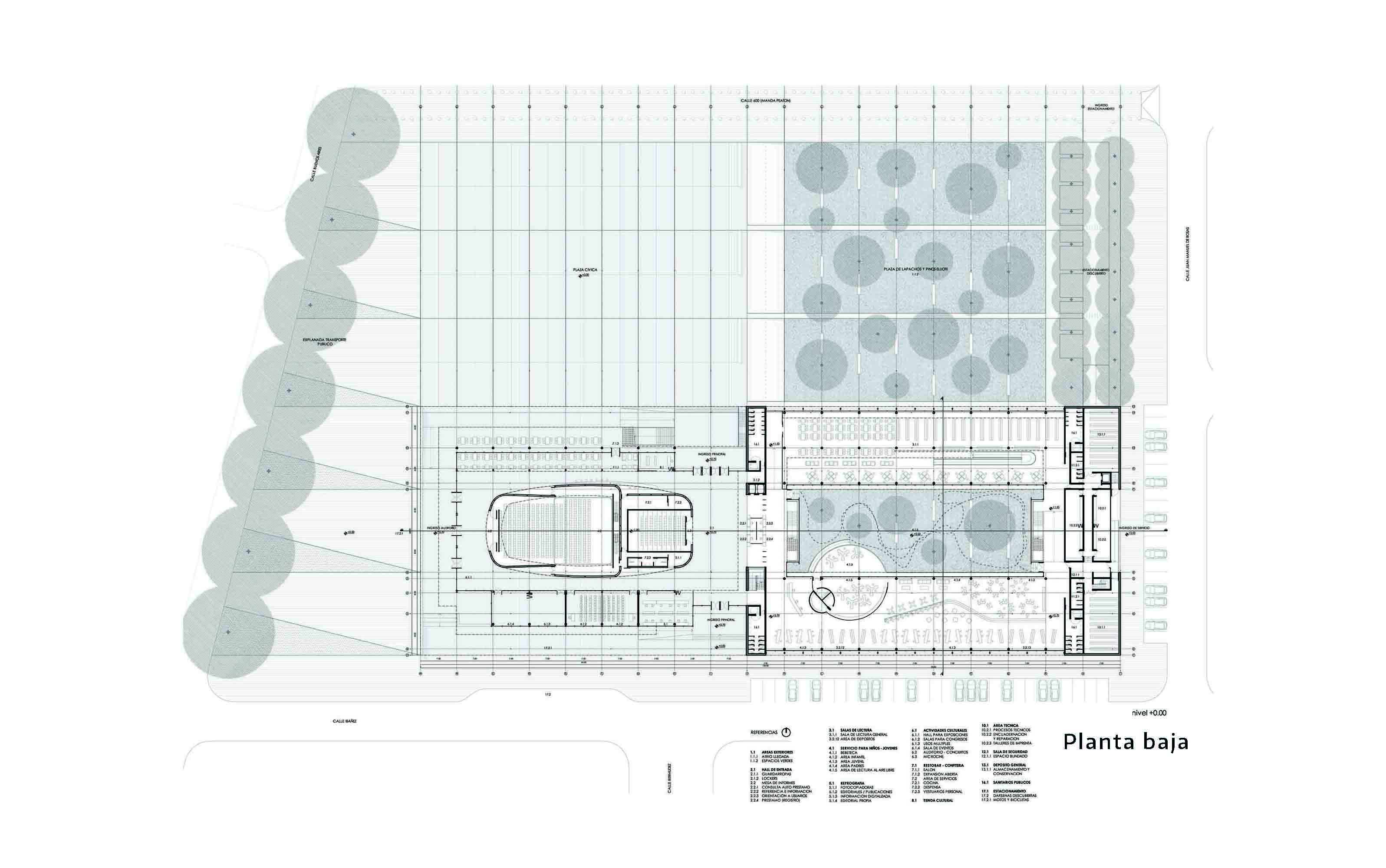
El programa de la Biblioteca del Bicentenarios se resolvió en dos plantas y se organizó en dos áreas bien definidas: una de lectura y la otra de actividades culturales, ambas vinculadas por un hall pasante norte-sur que se ubicó en la prolongación del trazado de Av. Bermúdez, en coincidencia con el del CMD. Los accesos independientes desde la plaza a estas áreas le dan lugar a un funcionamiento flexible, posibilitando bien un uso autónomo o un uso común.
La organización del sector de lectura en dos alas diferenciadas entre adultos y niños en torno a un patio con marcada transparencia favorece a la integración sin alterar la autonomía de dichas partes. Además, el tratamiento de este espacio abierto ha respetado los criterios paisajísticos del área verde de la plaza a fin de establecer un continuo entre ambos, determinando que la sala de lectura quede atrapada por la vegetación.
Hacia el sector de actividades culturales la situación se invierte y el espacio gira en torno a una masa interna de madera, que responde al desarrollo orgánico del volumen del auditorio y el micro cine. El espacio libre entre la caja externa del contenedor y este volumen interno fue ocupado por circulaciones, espacios para recepciones, exposiciones y el restobar, este último con orientación y expansión a la plaza cívica potencializando el frente de vida del edificio.
Sobre la fachada este y con franca relación a la sala de lectura se concentraron las funciones que generalmente la asisten, como son los servicios, talleres y depósitos con ingreso independiente para personal, y también para carga y descarga.
Para a resolución de la estructura se adoptó por un módulo de 7m x 7m, generando unidades de espacio homogéneas procurando la mayor flexibilidad de planta con el fin de facilitar los cambios en el tiempo no solo de las salas de lecturas y sus áreas de apoyo y depósitos, sino también del área cultural ya que se pensó el auditorio como un volumen independiente, de construcción seca, de sencillo desmantelamiento si a futuro existiera la necesidad de disponer del espacio que lo contiene, de 21m x 56m libre de columnas para nuevos usos de acuerdo a los avances tecnológicos, potencializando el rol mutante de la biblioteca en el siglo XXI.
El resultado es un concepto de planta libre materializada con hormigón armado excepto para el espacio que contiene el volumen del auditorio que es de perfilería metálica con una modulación de 3,5 m x 3,5m, generada por la subdivisión del patrón original. Dicha cubierta alterna paños de vidrio laminado y de chapa para su cerramiento con la propuesta de un parasol horizontal por encima que regula la incidencia de los rayos solares como así también protege el material de las inclemencias del tiempo.