































CONJUNTO DE VIVIENDAS PRO.CRE.AR - Bicentenario Baigorria
PROYECTO: 2013
EJECUCION: 2014/2016
SUPERFICIE CUBIERTA: 7580M2
UBICACIÓN: Granadero Baigorria, Santa fe, Argentina
PROYECTO: ARQ. ALEJANDRO BELTRAMONE, ARQ. MARIANO COSTA, ARQ GONZALO DE LA HORRA
COLABORADORES: Lisandro Martín Lopez, Paulina Valdez, Franco Massarutto
Memoria Descriptiva
“La periferia, que comienza como un crecimiento de la ciudad del siglo XIX, es hoy un conjunto de instalaciones, episodios de vivienda, infraestructuras, espacio vacío, naturaleza; un conjunto de fragmentos de distinto carácter. A pesar de ello o debido a ello, el término hoy se resignifica, especialmente en el entorno de las grandes ciudades y pensamos en periferia no como el afuera de la ciudad, sino en un lugar con identidad propia y quizás mejores posibilidades de calidad ambiental”.
Sara Fisch, “Construir en la periferia: El colonizador o el arqueólogo”
Cuando nos propusimos operar en la franja del FFCC de Granadero Baigorria el desafío comenzó por comprender su significado. Al respecto, el enunciado de Sara Fisch nos introduce con claridad en la problemática de intervenir dentro del paradigma contemporáneo de periferia céntrica, pues posee todas aquellas connotaciones relevadas en su reflexión:
Las vías dividen una ciudad más desarrollada hacia el Este y una menos hacia el Oeste, dejando en el medio grandes lonjas verdes con la presencia de antiguas edificaciones aisladas, algunas adaptadas a nuevos usos como la vieja estación, una añosa arboleda que identifica el sector y un entorno residencial ambiguo de baja altura conviviendo con equipamientos industriales de gran escala como lo es la planta de John Deere. En síntesis, “un lugar con identidad propia”, que intentamos intervenir con alta calidad ambiental respetando los principales lineamientos proyectuales enunciados en las bases del concurso; a saber:
Para obtener el cumplimiento de estos principios rectores sin alterar el plan de masas suministrado se llevaron a cabo las siguientes adaptaciones:
ESCALA URBANA
Identidad barrial
Aumentar la distancia entre las tiras de vivienda multifamiliar generando un espacio privado de uso colectivo con diferentes estaciones de equipamiento (deportivo, recreativo infantil y ocio). Se consolidó así, un espacio central de encuentro que recrea la identidad barrial representada por “la vida en la vereda”, permitiendo proveer de un acceso alternativo a las unidades de planta baja y a los núcleos de escaleras para los dúplex en altura a través de un recorrido acentuado por la presencia del paisaje natural que a su vez se conecta con el resto de los espacios recreativos públicos vertebrándolos en una idea de conjunto. Este resultado se obtuvo ajustando el ancho a 8 metros de calzada y a 2,40 el ancho de vereda de la calle que separa el espacio verde del FFCC con el frente oeste del conjunto; operación posible considerando su reducido tránsito vehicular por ser una arteria interior de la propia urbanización del sector.
Frente urbano
Adaptar la planta física de los cuerpos de vivienda en torre de acuerdo a la interpretación de las particularidades de cada uno de sus emplazamientos y frentes urbanos. Sin modificar la organización interna de las unidades de vivienda pero con un sutil juego de desfasaje entre ellas se consiguió adaptar la masa edificada a las principales condicionantes externas; como ser hacia el frente Norte, acompañar la inclinación del Pasaje Rafael Obligado logrando una relación más armónica con el ancho de su vereda; en tanto en el cuerpo sobre Av. Buenos Aires, espejando esta nueva opción de planta se logró tensionar la fachada hacia el interior de la supermanza y con esta operación se consiguió acentuar la escala urbana del ingreso al recorrido central propuesto entre las tiras de vivienda multifamiliar. Este concepto, lejos de agregar confusión o complejidad a la problemática de proyecto, allana el camino para adoptar decisiones proyectuales concretas que surgen de la interpretación pragmática y particularizada del sitio. De este modo, se alienta el reconocimiento de las partes que intervienen en el proyecto sin por ello perder la idea del conjunto.
Accesos y circulaciones
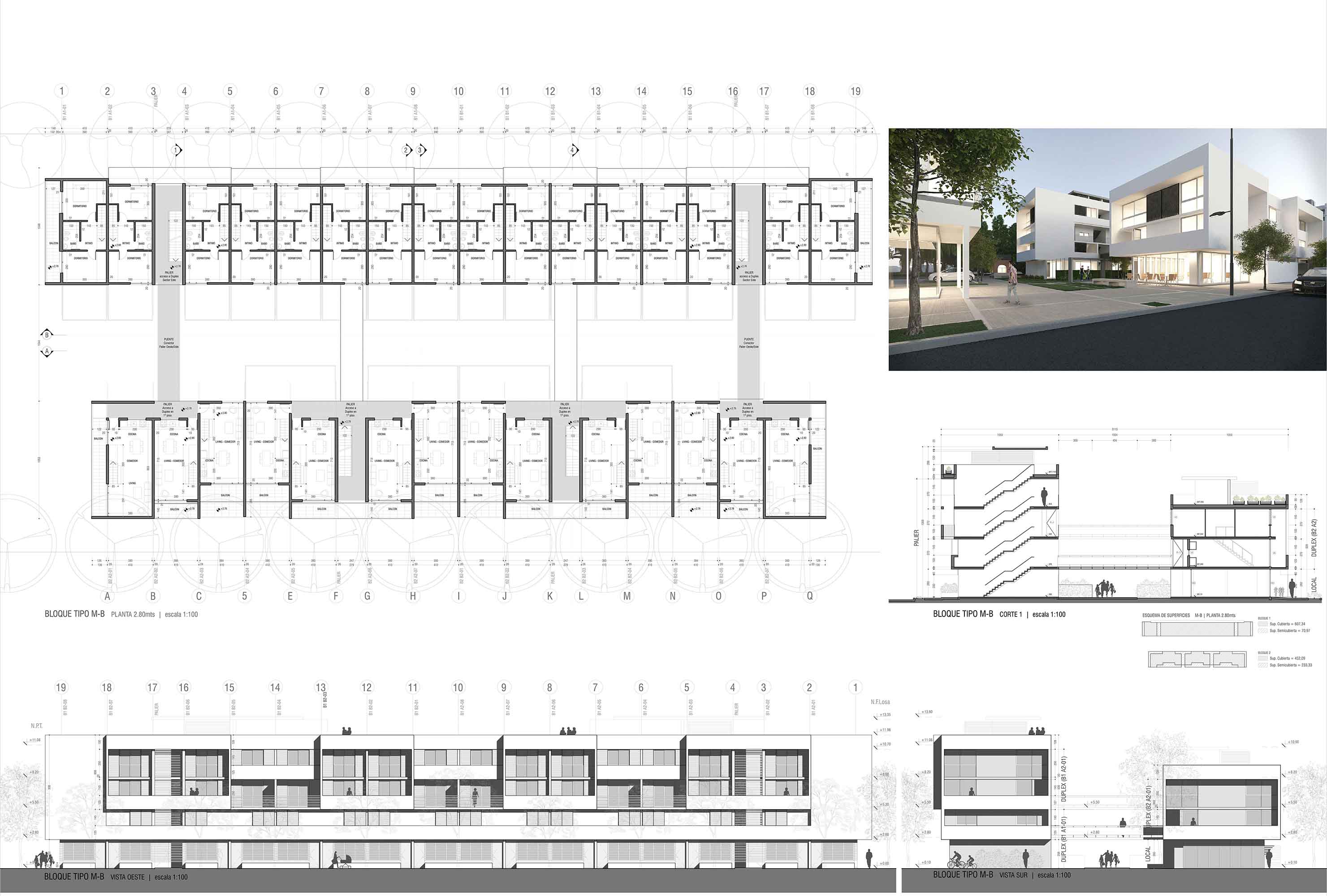
Optar por un sistema de accesos a las unidades de dúplex en altura mediante cuatro ingresos independientes con doble frente de ataque: desde la calle y desde el espacio central de uso colectivo. Con el complemento de puentes, cada uno de estos núcleos conectan a ocho unidades agrupadas de a cuatro por plantas. De este modo se ha evitado la circulación colectiva unificada por nivel para llegar a cada célula a través de extensos pasillos que generan servidumbre de paso conflictivas para la vida en comunidad y la calidad del hábitat. La creación de estos conectores verticales incorporados en la propia volumetría de los dos cuerpos de vivienda no solo ha posibilitado el acceso a la terraza como expansión de uso colectivo sino que a la vez ha permitido eliminar las escaleras del espacio central abierto haciendo más fluido su uso más allá de estar controlado en cada una de sus dos cabeceras por un sistema de rejas.
En el cuerpo de la torre ubicada sobre el Pasaje Rafael Obligado, el corrimiento del núcleo de circulación vertical generó una interesante situación que se alineó con el espacio abierto central de la nueva urbanización a la manera de puerta urbana que enfatiza su recorrido; más allá también, de favorecer el ingreso desde el sector de estacionamiento. Además este sistema, como lo es para todos los casos de accesos colectivos brindó la posibilidad de un cierre con rejas al espacio público, que sumado al del propio hall de planta baja funciona como doble protección.
Equipamiento
Rotar la planta de los dos sectores de estacionamiento de acuerdo a la lógica estructuradora de toda la intervención. Respetando la cantidad de espacios para vehículos indicada por los planos y planillas de superficie de las bases de concurso, con esta variable organizativa se adecuó cada sector a su área de emplazamiento dentro de la urbanización, abasteciendo a cada cuerpo edilicio con recorridos claros y cercanos a los accesos, favoreciendo la integración entre el frente Este y el Oeste mediante francas circulaciones continuas que entrelazan las plazoletas sobre la avenida Buenos Aires con la franja verde del FFCC.
A su vez, los locales comerciales no solo dan frente a la fachada urbana de las arterias que bordean el predio sino que con su nueva disposición en cada una de las cabeceras del zócalo de la tira se constituyen en un frente de vida para las plazoletas enunciadas con anterioridad generando espacios públicos con identidad para la ciudad.
ESCALA ARQUIETCTÓNICA:
Valor ambiental
A fin de garantizar la habitabilidad residencial del conjunto como parte integrante de la macro forma de la ciudad se consideró imprescindible potenciar el frente de vida de la masa edificada vitalizando fundamentalmente la planta en contacto con el suelo. Esto se ha logrado controlando el espacio abierto en contacto con el suelo definiendo los porcentajes destinados a uso común y a uso exclusivo, para obtener un equilibrio que garantice tipologías de viviendas con jardín o patio propio alentando el carácter residencial en contrapartida a los inconvenientes surgidos por la falta de apropiación del espacio abierto por parte de sus habitantes en los antiguos planes de vivienda de la Nación. Así todos los prototipos en contacto con el suelo poseen expansión propia al exterior con parcelas delimitadas por setos verdes que se integran al paisaje natural del espacio colectivo central.
Para favorecer esta situación de relación entre espacio abierto y espacio cerrado, en el caso de las viviendas para discapacitados, hubo que adaptar la planta agrupando los dormitorios y el sector social según el módulo estructural logrando como resultado una planta pasante con ventilación cruzada para el sector de estar, condición ambiental que se repite en todas las unidades del conjunto excepto en la de 1 dormitorio del cuerpo en torre.
Para los dúplex en altura, por la implementación del sistema de llegada a las unidades se generó un intercalado entre las plantas que determinó la posibilidad que de la totalidad de las células la mitad posea un amplio balcón terraza de 4 x 3 m como expansión, en tanto el resto continuó con los balcones sugeridos por las bases.
Privacidad
Proveer el debido filtro entre el espacio público y las viviendas para garantizar la privacidad de la célula, específicamente cuando se trataba de prototipos en contacto directo con el suelo. Este pretendido control de la planta baja, estableció pautas de tratamiento en las soluciones de las fachadas y en la organización del esquema distributivo del programa tendiente a evitar esta incompatibilidad entre público y privado.
Para los prototipos de dúplex en el frente oeste se ha optado por rejas en la misma carpintería del aventanamiento e incorporar, en el retranqueo del ingreso, canteros integrados con el propio diseño de la fachada como transición con la vereda pero sin perder el diálogo con la franja de espacio verde del FFCC. Para el frente urbano sobre Av. Buenos Aires se modificó el criterio por tratarse de una de las principales arterias de Granadero Baigorria, de gran escala, y de alto tránsito, lo que determinó acentuar el límite entre las viviendas para discapacitados y la vereda mediante un muro elevado para evitar la invasión visual y una reja a la manera de quiebra vista para marcar el fuelle con el interior; consolidando la línea de edificación mediante una síntesis expresiva con elementos que superen la escala doméstica de una vivienda y acentúen la escala urbana de la avenida.
En el edificio en altura, con el desfasaje de 1,5 m entre las tres unidades de vivienda se ha logrado incorporar los balcones a la propia volumetría del edificio evitando visuales cruzadas entre los mismos con el propósito de acentuar la privacidad de cada departamento.
Flexibilidad
Cuestionar los modelos organizativos tradicionales de la vivienda dando cuenta de los nuevos modos de habitar, determinó adoptar el concepto de planta libre para las áreas más sociales de las células.
La mayor aplicación de este lineamiento se materializó en la planta destinada al estar-comedor proyectada para los dúplex y las viviendas para discapacitados. Mediante un módulo estructural coincidente con el fijado para dividir las células y un único prototipo de amoblamiento de cocina que rota en el espacio de acuerdo a la ubicación de la célula en la tira de viviendas se aseguró la heterogeneidad de disposiciones particularizadas, acentuando la inespecificidad de su ámbito haciéndolo capaz de absorber diversas prácticas a través de un equipamiento interior adaptable al mismo espacio y el paso del tiempo.
Diversidad
Evitar la repetición y monotonía de las fachadas exteriores mediante un lenguaje arquitectónico contemporáneo que interprete la diversidad como condicionante derivado de la mixtura programática propuesta por el plan de masas ideado por el programa Pro.Cre.Ar para el sector 2 del predio de Granadero Baigorria.
Si bien el diseño de las envolventes arquitectónicas se correspondió con el desarrollo y las presiones internas de las plantas, el modelado de las elevaciones y volumetrías incluyeron también las condicionantes urbanas más relevantes, como ser que las unidades de viviendas que ocupan las cabeceras de las tiras de dúplex se giren para obtener una fachada viva frente a los espacios verdes del conjunto, o que los balcones de los cuerpos en torre estén todos dispuestos de acuerdo a la mejores orientaciones sin obviar otras valoraciones como ser potencializar las visuales más convocantes a través de la incorporación de las vistas al río Paraná en el caso del emplazado sobre Av. Buenos Aires o la generación de perspectivas profundas al bosque de añosos eucaliptos desde el ingreso a los departamentos ubicados al Oeste en la planta del edificio sobre Pasaje Rafael Obligado.
Todas estas consideraciones se llevaron a cabo contemplando la incorporación de vanos amplios con la consecuente diferenciación de los tipos de cerramiento de acuerdo a cada local y sus correspondientes orientaciones, teniendo en cuenta el ahorro de energía. Por ello, en los prototipos de dúplex con frente al Este las aberturas poseen mayor tamaño que las del frente Oeste o para la situación de las unidades en torres, los voladizos de los balcones fueron pensados como elementos de protección contra la incidencia del sol y la lluvia para las carpinterías más amplias del edificio; solo por enunciar algunas de las operaciones resultantes de las valoraciones presedentes.
Sustentabilidad
Incorporar un tratamiento de terraza verde a las azoteas accesibles de las dos tiras de viviendas multifamiliares con la finalidad de reducir el impacto ambiental producto de la incorporación de una nueva masa edilicia al espacio original del parque. Esta solución garantiza un mejoramiento de la calidad de habitar en los dúplex ubicados en las plantas más elevadas por su capacidad de aislación térmica a la radiación solar lo que supone una ventaja en el comportamiento medioambiental de la arquitectura (disminución del consumo energético, emisiones de oxígeno al medio ambiente, entre otras cualidades), además de ser un recurso apropiado para aumentar la calidad de vida de un espacio de expansión de uso colectivo como se le ha destinado a estas terrazas y por generar desde las viviendas en torres visuales que dialoguen con el verde tan prolifero del entorno natural cumpliendo con el objetivo de una verdadera arquitectura sostenible, que consiste, fundamentalmente en realizar una actividad constructiva conceptualmente integrada en la naturaleza; sin dejar de olvidarnos por ello, de aquellas acciones que no son tan perceptibles visualmente ya que son decisiones arquitectónicas básicas de proyecto y que se debieron acometer para conseguir esta pretendida integración: interpretación astuta de las orientaciones, disposición racional de los vanos, estudio de la envolvente arquitectónica (celosías, aleros, voladizos) y la elección consensuada de los materiales con las tecnologías locales más apropiadas para su utilización.
Materialidad
Racionalizar la utilización de los recursos para la ejecución del proyecto que devienen en técnicas constructivas sistematizadas y materiales de última generación y marcas reconocidas de procedencia nacional. Esta premisa general obedeció al cumplimiento de dos objetivos particularizados: el de optimizar los tiempos de ejecución de la obra y el de dinamizar la economía regional.
Para el cumplimiento del primer objetivo nos focalizamos en aquellos procesos constructivos que aseguraban la menor cantidad de rubros de la construcción mediante la incorporación de tecnologías y modos actuales de uso de materiales, como ser: sistemas de encofrados pre armados y reutilizables tipo PERI (o similar) para la estructura resistente; hormigón alveolar autonivelante para contrapisos y carpetas proyectados; elementos premoldeados de hormigón para montaje de escaleras interiores, ejecución de solados exteriores y equipamiento del espacio público; paramentos verticales en ladrillo cerámico hueco sin dinteles ni mochetas; revestimientos continuos proyectados (exteriores 4 en 1 e interiores de yeso monocapa); sistema de construcción en seco para cielorrasos de núcleos húmedos; barandas metálicas prefabricadas; cerramientos de exteriores en carpintería de aluminio con premarcos y amoblamiento de cocina industrializado mediante diseño de un único prototipo adaptable a todas las unidades de vivienda.
Para efectivizar el segundo de los objetivos propuestos se priorizo aquellos que se produzcan y comercialicen en el mercado local vinculado con el área de realización del proyecto. En todos los casos son materiales de marcas reconocidas avaladas por el INTI, los que se utilizan actualmente en forma habitual en el gremio permitiendo contar con mano de obra capacitada para ejecutar las tareas.
Al respecto, la decisión más significativa fue haber optado por ladrillos huecos cerámicos y revestimientos continuos para la envolvente arquitectónica descartando el ladrillo visto u otro material al desnudo. Inconvenientes en la fabricación y provisión de este último material para obras de escala masiva de acuerdo a experiencias locales padecidas en los últimos tiempos, sumado a la dificultad de obtener mano de obra calificada para su ejecución (máxime por tratarse no solo de construcciones bajas sino también de edificios en altura), llevaron a la elección enunciada precedentemente, convirtiéndose en una alternativa de materialidad de probados y eficaces resultados, aplicada con técnicas constructivas modernas que redundan en una expresión contemporánea.
Es necesario aclarar que más allá de la justificación de esta ejemplificación, en todos los casos se tuvo como encuadre básico y como premisas de selección de materiales, los aceptados en el anexo III del pliego de condiciones generales; y si bien los precedentes procesos y materiales son los adoptados en el proyecto, los mismos permiten adaptarse a variaciones de mercado frente a contingencias de provisión y suministro, sin alterar el resultado arquitectónico de la obra .