TXT










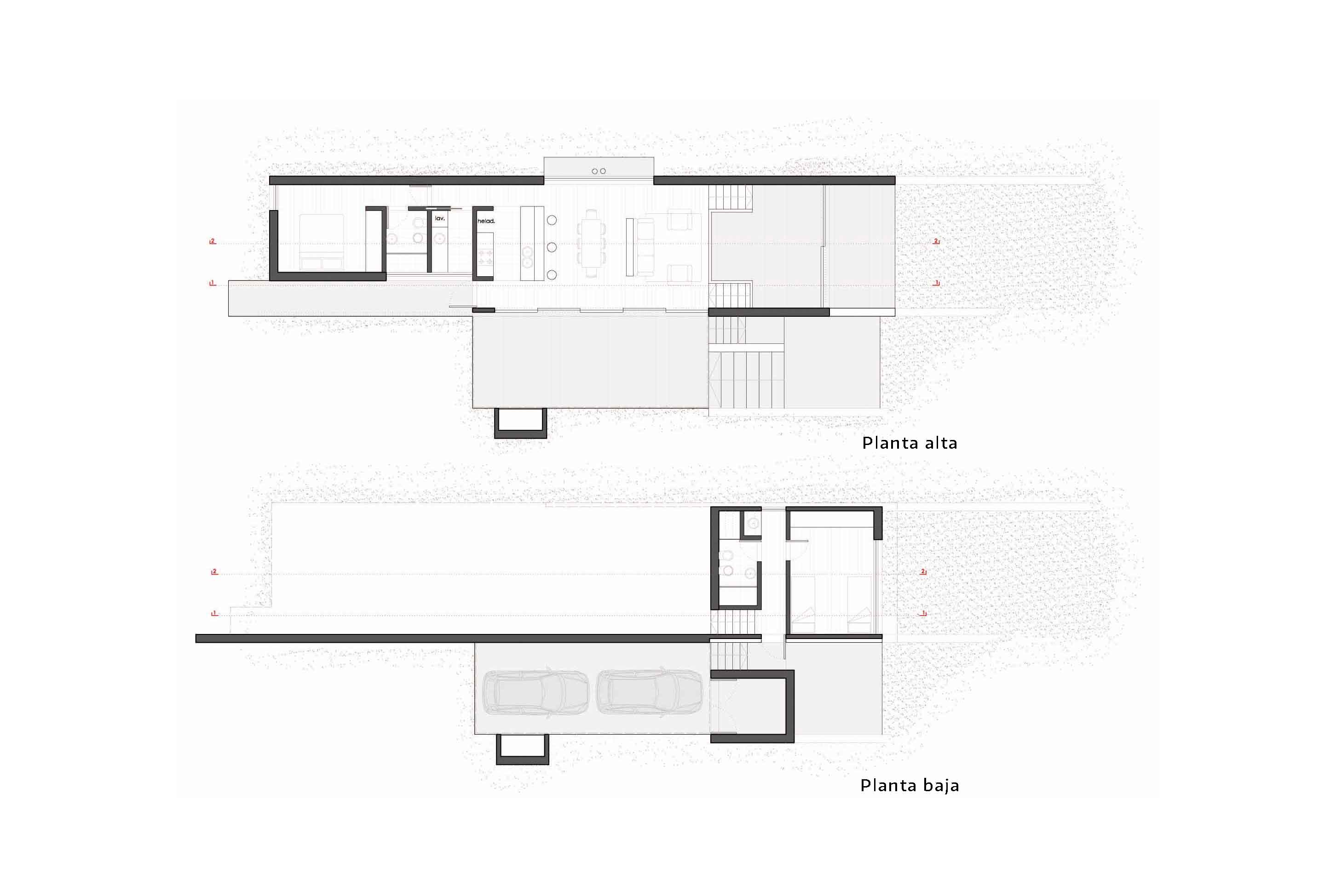
VIVIENDA UNIFAMILIAR EN LAS SIERRAS
PROYECTO: 2011
EJECUCION: 2012
SUPERFICIE CUBIERTA: 146M2
UBICACIÓN: Santa Rosa del Río, Cordoba, Argentina
PROYECTO: ARQ. ALEJANDRO BELTRAMONE, ARQ. MARCELO PONZELLINI
COORDINADOR DEL PROYECTO: ARQ. MARIANO LEGUIZAMON
COLABORADORES: L. Etchervarne, L. Meyer