
















VIVIENDA COLECTIVA 4 CASAS
PROYECTO: 2001
EJECUCION: 2002-2003
SUPERFICIE CUBIERTA: 420M2
UBICACIÓN: Ayacucho c/v Viamonte, Rosario, Santa fe, Argentina
PROYECTO: ARQ. A. BELTRAMONE, ARQ. M. PONZELLINI, ARQ. M. COSTA, ARQ. M. VALENZUELA.
COORDINADOR DEL PROYECTO: ARQ. M. LEGUIZAMON
COLABORADORES: F. Yaqüinto
Memoria descriptiva
La condición de partida del proyecto fue la posibilidad de pensar una obra de propiedad horizontal sin recurrir a la inmediatez de la “solución vertical” de departamentos por pisos.
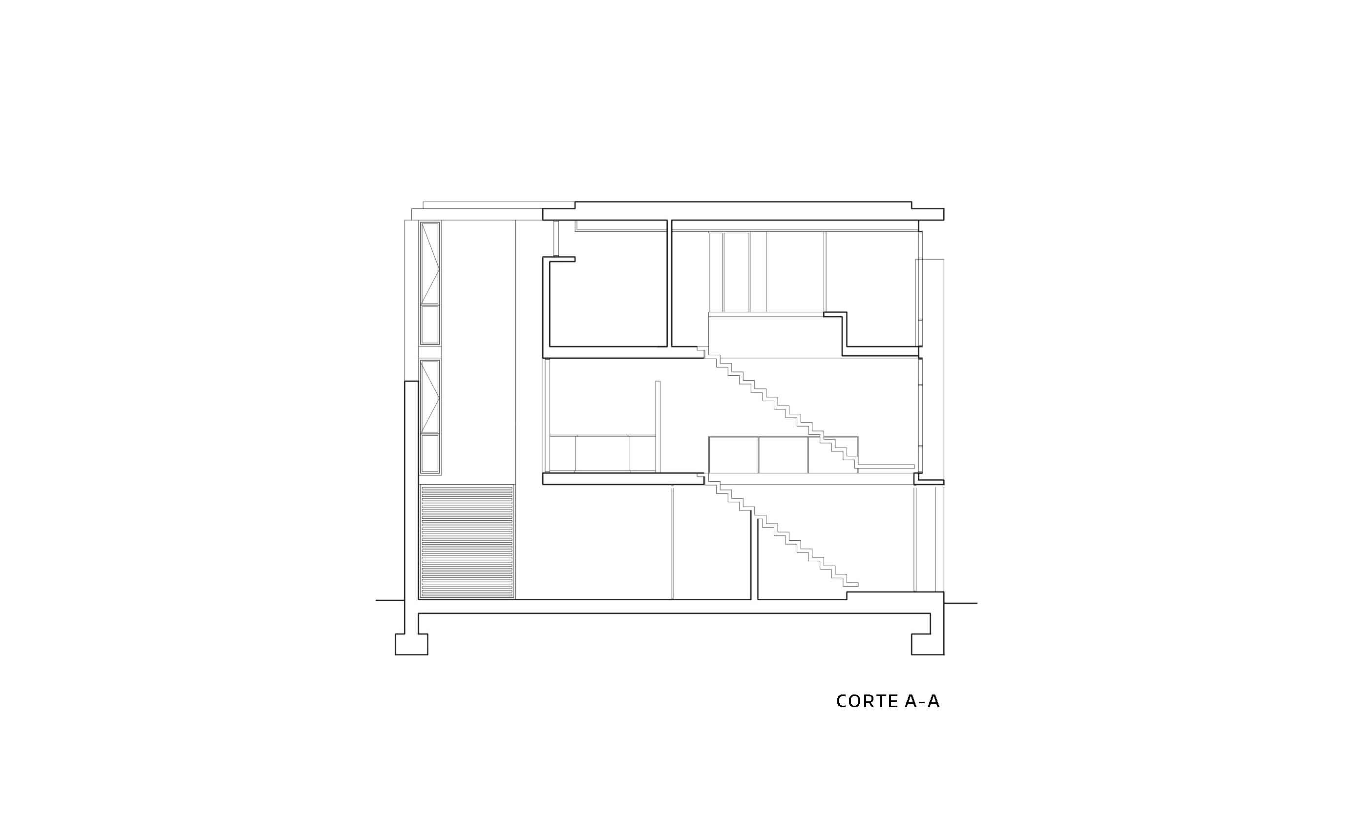
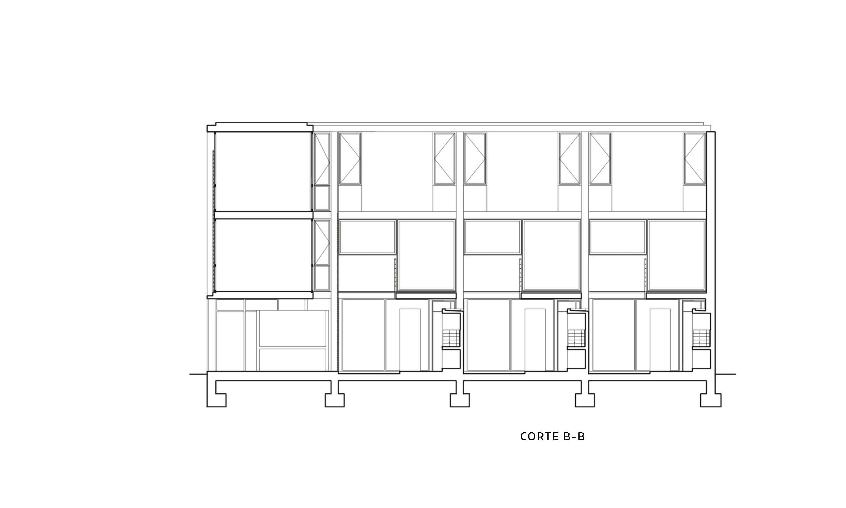
La operación consistió en dividir el solar de esquina en cuatro parcelas mediante un módulo de 4,25 m, propicio para albergar el programa de vivienda pensado para el sitio.
El resultado es un conjunto de cuatro tríplex capaces de ser vividos cada uno como una casa individual con la mayor flexibilidad posible de uso de acuerdo al criterio de planta libre y tabiquería móvil adoptada. Recurso que es empleado pensando en la diversidad de los modos de habitar de los futuros propietarios; puesto que la obra responde a un emprendimiento inmobiliario propio de los autores sin comitentes directos durante la génesis del proyecto.
De este modo, el tercer nivel, la planta de dormitorios, se puede organizar de tres modos diferentes: un dormitorio en suite más un espacio de estudio o estar íntimo; dos dormitorios; o bien un dormitorio principal y dos dormitorios pequeños.
En el segundo nivel, el estar-comedor, la cocina y la terraza de expansión forman un espacio continuo pero posible de ser dividido por una mampara de vidrio esmerilado y marco de madera guatambú.
En el primer nivel, en contacto directo con la calle, se resuelve el lavadero y la cochera con un baño de recepción y un parrillero; de tal modo que, más allá de la función de alojar un vehículo, también existe la posibilidad de un espacio polifuncional para reuniones familiares, agasajos u otros eventos con mayor número de ocupantes con relación a la capacidad y privacidad de la segunda planta perteneciente al sector convencional de estar-comedor.
El pequeño patio de ingreso de luz cenital que completa esta última planta no sería posible si la obra no entraría bajo el régimen de propiedad horizontal; debido a que las normas no aceptarían sus dimensiones mínimas excepto de ser considerado como espacio común de uso exclusivo, como es para este caso. De tal modo, el proyecto se nutre interpretando el código, pero sin resolver el programa de acuerdo a las prefiguraciones del lenguaje técnico de las normativas y sus convencionales tipologías edilicias; en tanto la obra no presenta espacios colectivos, más que la vereda, y a su vez cada unidad posee su ingreso independiente desde el espacio público de la calle como si se tratase de una vivienda unifamiliar.
Esto no significa una pérdida de la identidad colectiva en pos de la fragmentación, pensamos que el proyecto es más que la suma de partes y que la noción de totalidad es inherente a su condición de ser, y más precisamente a la relación con la ciudad; como completamiento de su tejido.
Por tal motivo, la imagen de conjunto se acentuó respetando las alturas promedio del entorno con el propósito de reforzar la escala barrial del área de emplazamiento tomando como referente el volumen edilicio existente hacia el norte –perteneciente a las oficinas de una constructora-; y se complementó, con la interpretación de la materialidad como condicionante de la arquitectura: el material de frente blanco definió la envolvente del proyecto en sintonía con la imagen racionalista que caracteriza la arquitectura rosarina desde los tiempos en que “las catedrales eran blancas”.