X

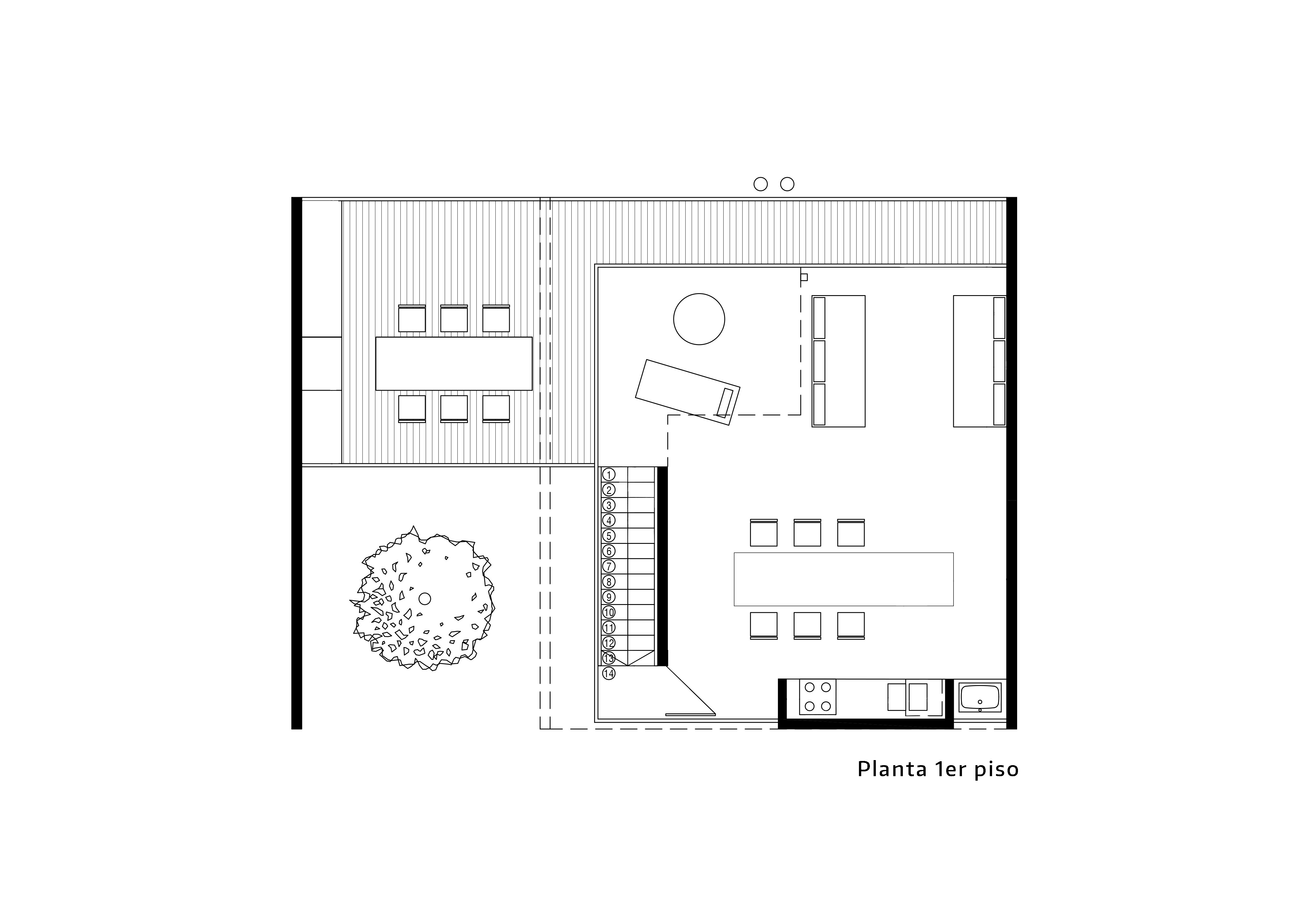
VIVIENDA COLECTIVA COLÓN

 

PROYECTO: 2011

EJECUCIÓN: 2012

SUPERFICIE CUBIERTA: 410m2

UBICACIÓN: Colón, Entre Rios, Argentina

PROYECTO: ARQ. ALEJANDRO BELTRAMONE, ARQ. MARCELO PONZELINI

<
>