

EDIFICIO MIRADOR DEL PARQUE
PROYECTO: 2006
EJECUCION: 2005-2006
SUPERFICIE CUBIERTA: 1501M2
UBICACIÓN: Moreno 2039, Rosario, Santa fe, Argentina
PROYECTO: ARQ. ALEJANDRO BELTRAMONE, ARQ. MARCELO PONZELLINI, ARQ. MARIANO COSTA, ARQ. MARISOL VALENZUELA
COORDINADOR DEL PROYECTO: ARQ. MARIANO LEGUIZAMON
COLABORADORES: Arq. S. Cardozo, Arq. C. Singerman, Arq. M. Tourn
MEMORIA DESCRIPTIVA
Estado de situación:
En el área central de nuestra ciudad, la inmediatez por resolver casos de edificios de propiedad horizontal provocó la adopción generalizada de soluciones estereotipadas de acuerdo al ancho del frente del lote, que como sabemos no presenta mayores variaciones.
Esto ha provocado un anodino tejido en altura, de lecturas bidimensionales entre fachadas y contrafachadas obviando, en varias oportunidades, la expresión arquitectónica resultante de sus medianeras desnudas.
A su vez, este modo simplista de operar afectó también lo programático, al definir la planta mediante una organización dimensional devenida de la especulación inmobiliaria y no de la calidad espacial en relación al habitar.
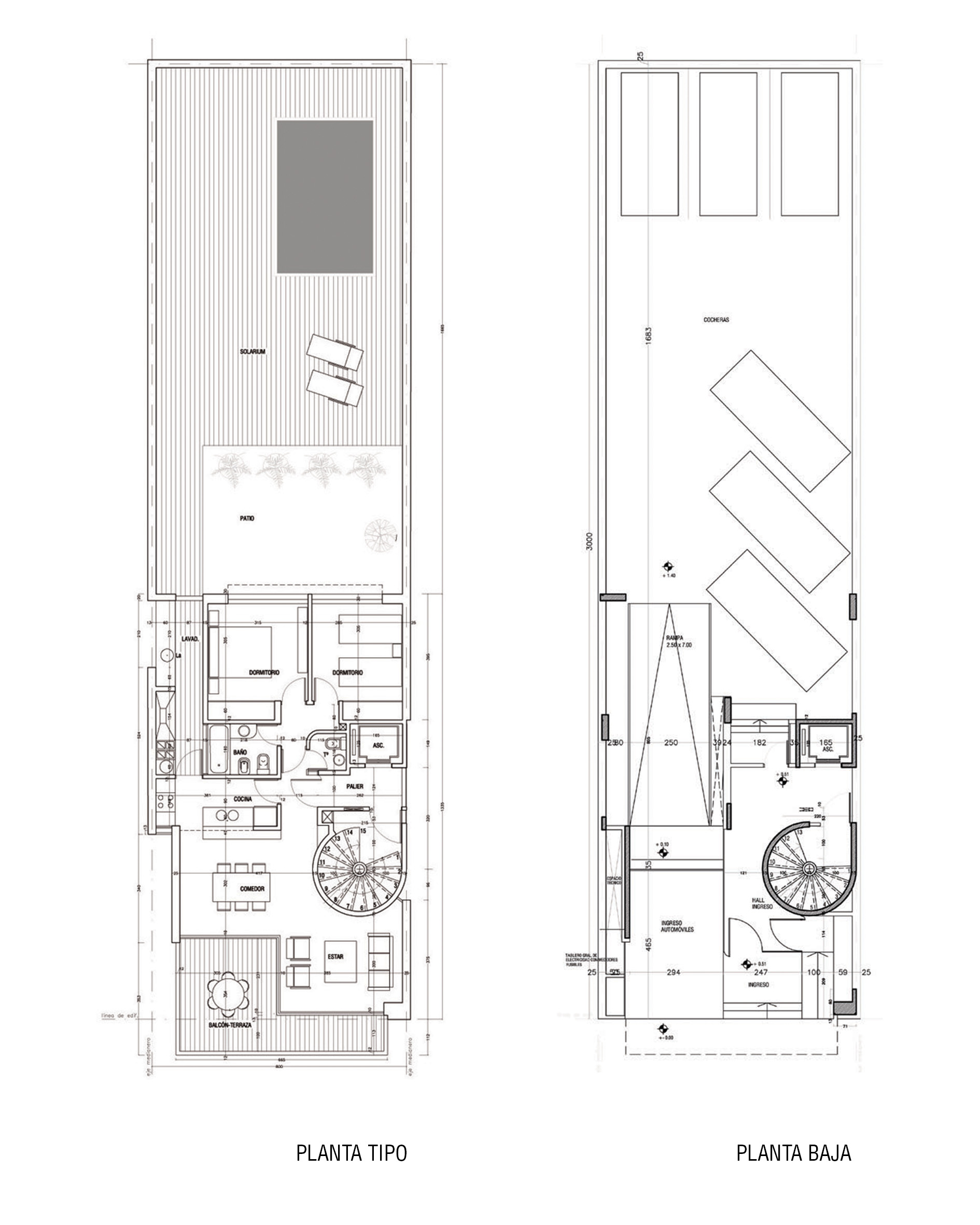
El proyecto
La obra del edificio “Mirador del Parque” cuestiona este escenario urbano a partir de reformular el programa de acuerdo a su lugar de emplazamiento y a la estructura resistente en relación a las medidas del terreno.
Programa/ Lugar:
Se proyectó una planta compacta con espacios intermedios que resuelven funciones de servicio (parrillero, lavadero, tender); y de expansión que es la terraza balcón que se encuentra en franca relación con el Parque Independencia para alcanzar la mayor continuidad espacial posible transgrediendo los límites físicos de la caja arquitectónica.
La presencia de una circulación de 3m lindera hacia el Norte, para acceso a lotes internos, permitió resolver un edificio catastralmente entre medianeras, como si fuese en esquina.
El límite sur fue moldeando como una fachada más, mediante el tratamiento de su materialidad, geometría y alturas.
Estructura/ Espacio:
El reconocimiento de la estrechez del terreno tensionó el diseño de la estructura para adoptar una solución sin columnas a la vista que impidan la flexibilidad funcional y la lectura continua tanto del espacio interior como la del paisaje natural.
Como expresara Campo Baeza “…la GRAVEDAD, su control a través de los elementos portantes, de la estructura, es la base material que ordena la arquitectura, que construye el ESPACIO.”
Por ello, para nosotros, la ESTRUCTURA siempre ha estado presente en los proyectos desde la etapa fundacional de las ideas.