



























VIVIENDA UNIFAMILIAR K87-88
PROYECTO: 2008
EJECUCION: 2008/2010
SUPERFICIE CUBIERTA: 574M2
UBICACIÓN: Kentucky Club de Campo, Funes, Santa fe, Argentina
PROYECTO: ARQ. ALEJANDRO BELTRAMONE, ARQ. MARCELO PONZELLINI
COORDINADOR DEL PROYECTO: ARQ. MARIANO LEGUIZAMON
COLABORADORES: Arq. Sebastián Cardozo, Srta. Ana Prato
Memoria descriptiva
NATURAL+ARTIFICIAL
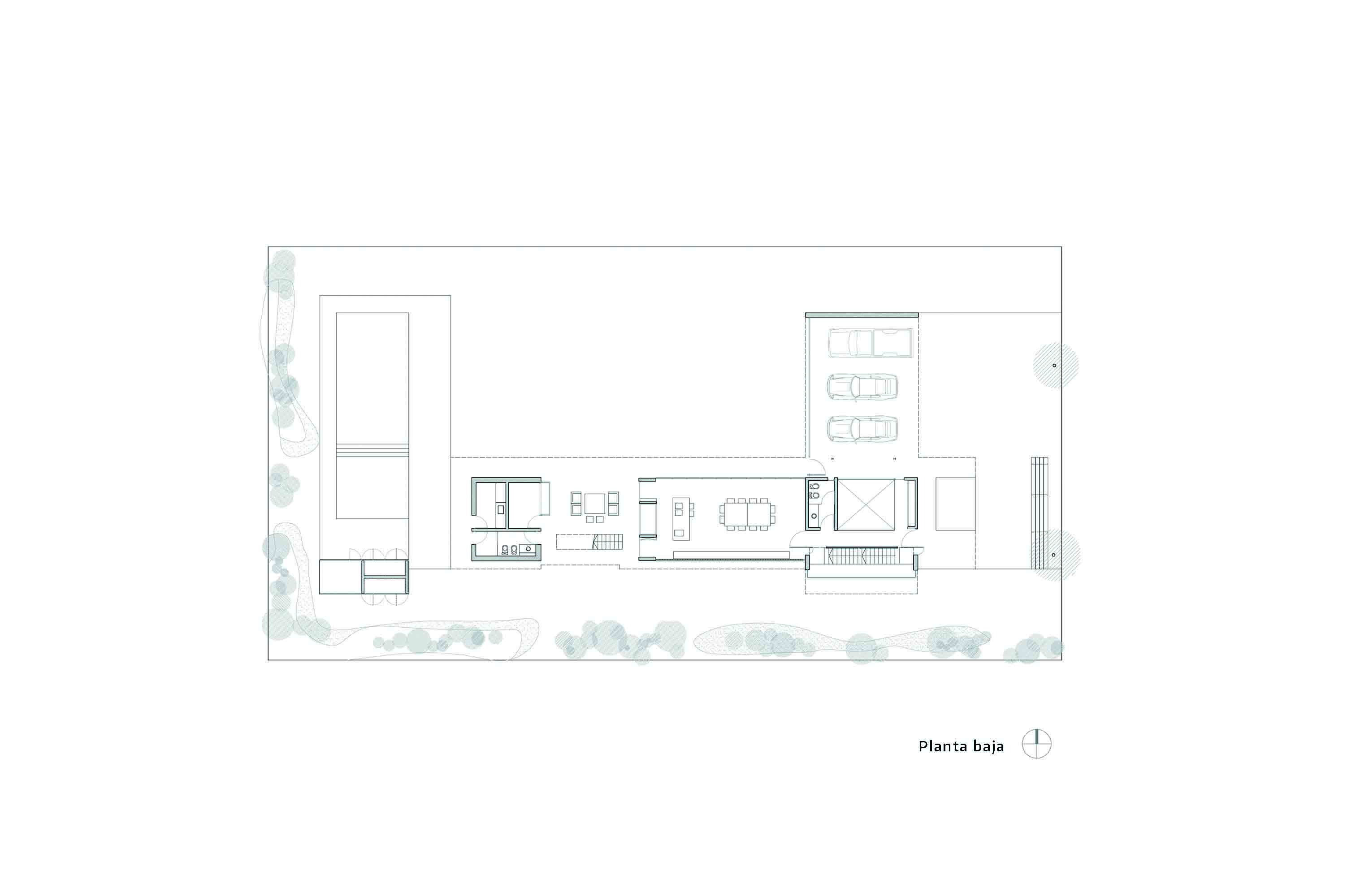
La estrategia de ubicar la vivienda en un solo lote de los dos que integraban el terreno ubicado dentro de un club de campo del litoral argentino, la forma alargada de la parcela individual y el uso alternativo de la casa entre fines de semana y temporada de verano, condicionaron fuertemente la morfología, los volúmenes y la organización de los espacios interiores de la casa proyectada para un matrimonio con dos hijas pequeñas.
Es así que la vivienda se concibió con el deseo de aprovechar las mejores orientaciones y visuales, abriéndose al norte y concentrando las perspectivas hacia la hilera de añosos eucaliptos, principal referente de la geografía del lugar; buscando una íntima relación interior-exterior, a través de grandes aberturas de vidrio. Para enfatizar el diálogo con la naturaleza, en planta baja -principal área social de la casa- estas aberturas se pueden plegar en su totalidad, transformándose en un “gran espacio intermedio” provisto de un importante asador, espacio propio de la cultura pampeana argentina.
En planta alta, nivel donde se desarrolló propiamente el programa básico de la vivienda –sala de estar, comedor, cocina y habitaciones- fue la expansión a una gran terraza-mirador la que acentuó la relación de la arquitectura con el paisaje.
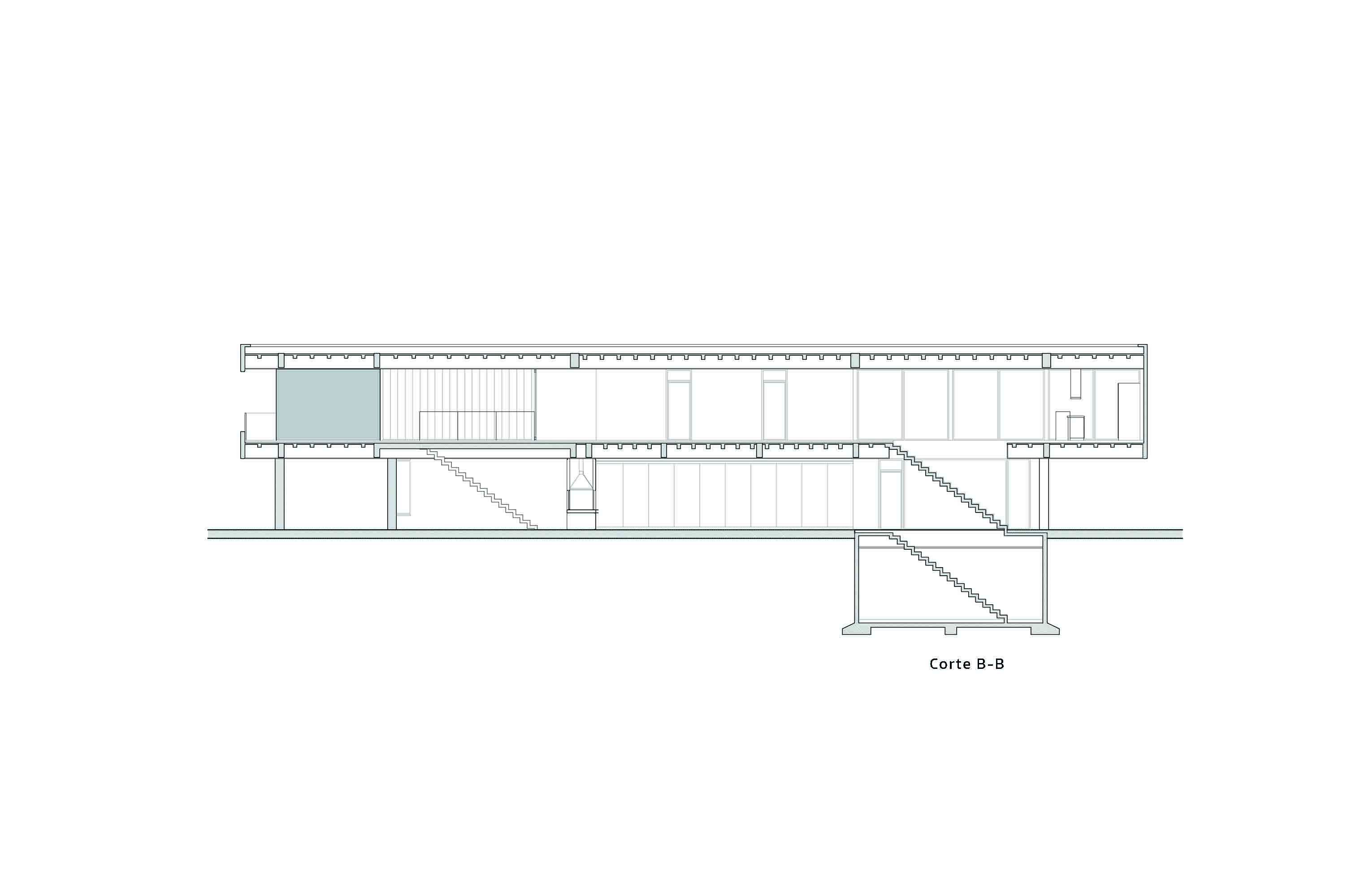
Esta relación unívoca del interior con el exterior se potenció aún más mediante la ausencia de columnas lograda a través del diseño de una estructura independiente de hormigón armado con importantes vigas en la fachada orientada al jardín. En contraposición, tabiques ciegos al sur protegen la casa de los vientos y lluvias otorgando una imagen hermética, de refugio.