















VIVIENDA UNIFAMILIA K194
PROYECTO: 2009
EJECUCION: 2010/ 2013
SUPERFICIE CUBIERTA: 625M2
UBICACIÓN: Kentucky Club de Campo, Funes, Santa fe, Argentina
PROYECTO: ARQ. ALEJANDRO BELTRAMONE, ARQ. MARCELO PONZELLINI
COORDINADOR DEL PROYECTO: ARQ. MARIANO LEGUIZAMON
EQUIPO DE PROYECTO: Arq. Sebastián Cardozo, Sr. Luis Etchevarne, Srta. Daniela Falena, Srta. Julia Kercrhaert, Arq. Celeste Singerman
Memoria Descriptiva
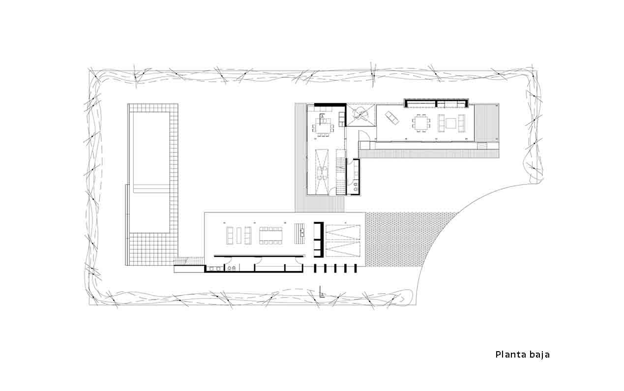
Las dimensiones de una parcela irregular ubicada en el barrio cerrado “Kentucky, club de campo”, nos otorgó la superficie donde físicamente se desarrolló el proyecto, pero el verdadero alcance del terreno fue el barrio en sí mismo. Pensamos que era necesario reforzar los límites del lote en tanto el cerco ya se encuentra levantado en todo el perímetro de la urbanización, en síntesis en “barrio cerrado- parcela abierta”.
Por consiguiente, el emplazamiento de la vivienda intentó adaptarse a la geometría y tensiones que imponía la rotonda de la arteria de “fondo de saco” y así fue como generamos dos instancias en contacto con el suelo; una más expuesta con el estar y comedor principal relacionado con la calle y la perspectiva profunda hacia la calle que remataba en las hileras de los añosos eucaliptos del ingreso principal del barrio; y otra más privada con el asador, el estar diario y la cocina vinculados al jardín y la piscina, un paisaje más recoleto generado por el propio proyecto. De este modo, con galerías, expansiones y superficies vidriadas se resolvió en planta baja el diálogo de la arquitectura con su entorno natural, desdibujando los límites entre el exterior y el interior.
Como contrapunto, dos prismas bien definidos por volúmenes austeros de líneas simples han contenido en planta alta el sector más reservado del programa. Separadas por un espacio central en doble altura con un puente para vincularlas el ala sur se ha destinado a los dormitorios de los hijos, en tanto que el ala norte se ha reservado a la suite de los padres.
Esta dualidad entre planta baja y alta se acentuó con la elección de la materialidad a través del cambio de la piedra desnuda en contacto con la tierra por el hormigón visto en contacto con el cielo. Pero la diferencia no solo radica en la expresión tectónica de ambos, sino con el rol que se le asignó en la obra: mientras que al primero con un carácter netamente epitelial se lo ha destinado a revestir; al segundo se le ha agregado su función natural de soporte.